
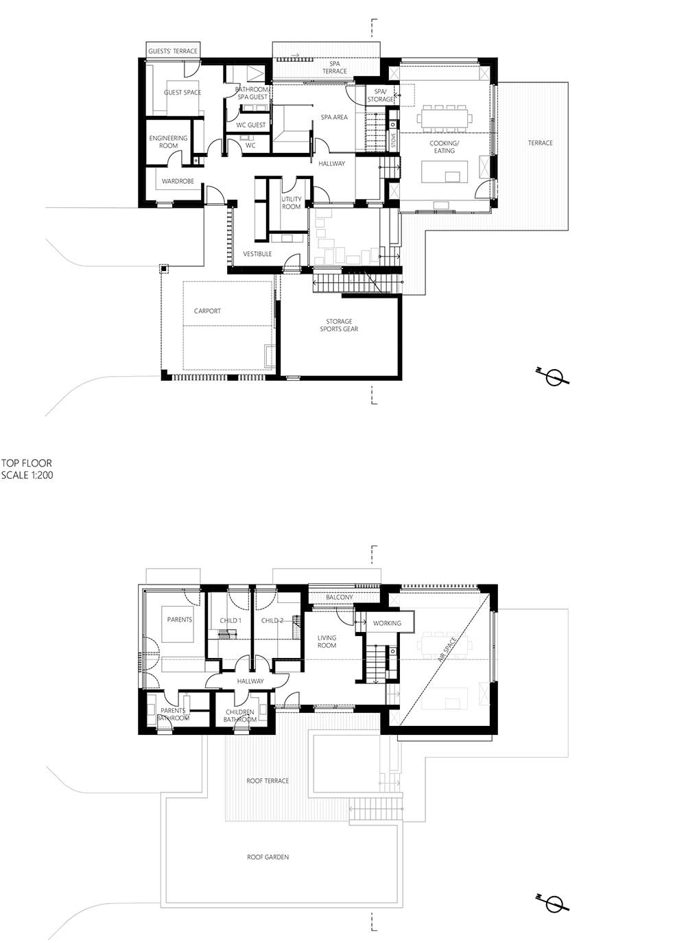
En un entorno rural rodeado de vegetación, se alza un moderno edificio de madera que redefine la relación entre arquitectura, naturaleza y sostenibilidad. Su fachada de alerce, cálida y elegante, se integra con armonía en el paisaje, logrando que la construcción se funda con el entorno. El proyecto, denominado Minimalismo, fue concebido bajo tres principios fundamentales: la creación de amplios espacios para la vida familiar y comunitaria, la conexión directa con la naturaleza y el compromiso con la sostenibilidad.
El diseño combina materiales contrastantes —madera y hormigón— para dar forma a una edificación contemporánea de líneas puras y estética funcional. El resultado es una vivienda de espíritu minimalista, donde cada detalle expresa equilibrio y sofisticación. En el interior, los amplios ventanales inundan los espacios con luz natural y ofrecen vistas panorámicas de este a oeste, borrando los límites entre el adentro y el afuera. Los asientos junto a las ventanas refuerzan esta sensación, permitiendo a los habitantes disfrutar del paisaje como si estuvieran al aire libre.
El corazón de la casa es su núcleo de hormigón visto, que no solo cumple una función estructural y estética, sino también térmica. Este elemento alberga una chimenea integrada que aprovecha la capacidad de almacenamiento de calor del hormigón, distribuyendo la temperatura de manera uniforme en los espacios habitables. Además, incorpora zonas funcionales como una escalera, un área de trabajo, asientos integrados y espacio para almacenar leña, actuando como un verdadero eje articulador de la vivienda.
Lea: Esta casa fue construida en madera sobre un sótano de concreto
La galería adyacente, construida en acero negro, conecta visualmente los niveles de la casa y refuerza la sensación de amplitud. En conjunto, los materiales, la luz y las texturas naturales dialogan para crear un ambiente sereno, contemporáneo y profundamente humano.
El concepto de sostenibilidad se extiende más allá del diseño arquitectónico: una bomba de calor aerotérmica y un sistema fotovoltaico instalados en la cubierta garantizan la autonomía energética en calefacción y electricidad. Esta combinación tecnológica asegura eficiencia, confort y respeto por el entorno.
Mire: La Colección de mesas auxiliares Koroi resaltan las vetas únicas de la teca y caoba.
El proyecto Minimalismo es una muestra de cómo la arquitectura en madera puede ser moderna, eficiente y emocionalmente conectada con la naturaleza. Una vivienda que demuestra que el diseño sostenible no solo se ve, sino que también se siente.
Premio BIG SEE Architecture Award 2023 – Winner, Residential – houses
Diplomado en Arquitectura
. Ing. En Linda Neuweiler, Licenciada en Licenciatura; ARQUITECTURA DE NIEVE
Año de finalización
2021
Ubicación:
Kitzbühel, Austria
Superficie total
1.000 m²
Fotos de
Lukas Schaller










